CHOI-MRL-Pro卓悦无机房客梯 | 以创新设计与强大性能,开拓建筑新未来!
在当今全球城市化进程迅猛加速的大背景下,高层建筑与住宅小区如雨后春笋般不断涌现,电梯作为生活中不可或缺的交通工具,其需求也在迅速增长。
无机房电梯以无需电梯机房、节省空间的显著优势,逐渐在市场中占据重要地位,尤其是在住宅小区、商业楼宇等高密度建筑场所,因其能节省建筑空间、降低成本并提高使用效率,深受市场青睐。
CHOI-MRL-Pro卓悦无机房客梯便是在这样的市场需求下应运而生的全新产品,专为满足严苛的建筑标准和用户需求精心设计。
1.产品技术标准
CHOI-MRL-Pro卓悦无机房客梯作为全球化产品,满足包括EN81-20、EN81-50、GB7588.1、ГОСТ33984、TSG T7007、TSG T7001等多项标准,充分确保其在不同市场中满足规范性与安全性。该产品已成功通过型式试验,并获得CE、EAC等多项国际认证。这些认证不仅大幅提升了产品在国际市场上的竞争力,更确保其能够为用户提供可靠的乘梯体验。

2.土建优势
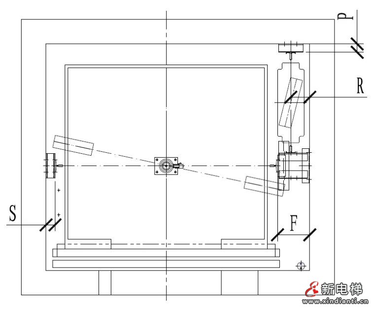
与传统无机房电梯相比,CHOI-MRL-Pro卓悦无机房客梯的土建优势极为显著。其独特的设计使得电梯井道平面和顶层高度大幅缩减,且由于驱动部分安装在导轨背面,完全位于轿厢的投影面之外,从而使井道占用空间更小。这种设计使顶层高度降低了100-200毫米,顶层导轨支架的分布也更加简洁,有效解决建筑物中圈梁密集排布的难题。如此改进,既提升了安装的便捷性,又降低了对建筑结构的要求。

3.改造市场优势
首先,CHOI-MRL-Pro卓悦无机房客梯井道小、顶层矮,几乎能够适应所有的井道。其次,其顶部的导轨支架布置范围宽,对井道的圈梁适应能力极强。最后,产品主机安装于导轨背后,对于友商碟式马达主机的电梯,此产品能够完美应对。
4.原厂核心部件
CHOI-MRL-Pro采用原厂核心部件,特别是超薄外转子曳引机。该曳引机运用创新的设计理念和精湛的工艺制造,具有结构紧凑、体积小、重量轻、功耗低、噪声低等诸多特点。其超薄机身设计使得曳引机厚度与传统碟式马达相差无几,极大地节省了空间。同时,曳引机采用高性能永磁材料和精确设计的电机结构,具备低转速、大扭矩的特性,确保电梯在运行过程中安静平稳。
5.安装与维护便利
CHOI-MRL-Pro卓悦无机房电梯的另一突出优势在于其安装和维护的便利性。其轻型机座和钢梁设计使得设备重量显著降低,让电梯的安装过程更加轻松快捷。同时,下返绳的设计进一步优化了轿顶空间,使电梯的维修和保养更加方便。另外,主机位置较低,磁环编码器前置设计,维护时操作人员只需站在轿顶即可进行操作,维护编码器时无需像传统电梯那样吊装主机。

6.运行平稳舒适
为了给用户提供更舒适的乘梯体验,CHOI-MRL-Pro采用了减震和抗摆动技术。首先,主机采用双重减震结构,曳引机下部机座采用氯丁橡胶减震垫。其次,电梯轿厢和轿厢架经过特殊设计,运行过程更加平稳,三心(轿厢的重心、吊心、导轨中心)合一的结构极大地提升了电梯的整体安全性。
轿底采用双层结构,并采用6点减震支撑。通过优化橡胶的硬度,使力学分布更加合理,进一步增强了减震和防摆的效果。这些措施不仅提升了轿厢的乘坐舒适度,还显著减少了电梯在运行过程中的噪音和震动,其振动曲线更是超越了国家标准。

7.安全保护措施
• IP67井道照明:有效避免井道进水导致的漏电;
• 30毫安RCD保护:防止漏电引发人身触电事故以及电气火灾和设备损坏;
• 12V轿顶照明:让维护人员更加安全;
• 封星制动:提供多重保障,防止电梯坠梯;
• 电机过热保护:使电机寿命更长;
• EMC滤波:确保设备稳定运行,提高系统的抗电磁干扰能力。

8.竞争优势与市场前景
在无机房电梯市场中,CHOI-MRL-Pro凭借其卓越的设计、安装与维护便利性、运行舒适性和安全保护措施,已然具备强大的市场竞争力。该电梯凭借其土建优势和高效运行性能,成为众多电梯和建设单位的首选,广泛应用于各类建筑项目中。
